︎
janlebl
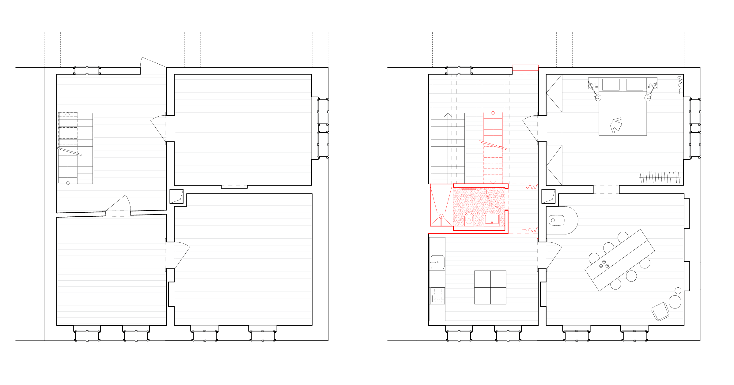
Musíme opravdu všechno vyměnit a udělat znova? Perlinka nesmí přes práh!
Výsluní
2023+ Výsluní v Krušných horách
svépomocná, poctivá a pomalá oprava našeho starého domu
spolupráce: Emilie Rážová, Gaby a myšky s ušima
ing. arch. Jan Lebl
ČKA 05752
info@janlebl.cz
+420 606232057